Casa indipendente in vendita a Triggiano(Ba)

In vendita
3 locali
Triggiano
90.000 €
Descrizione
Vi presento questo fantastica casa singola di 3 locali in vendita nel comune di Triggiano. Si trova proprio nel pieno centro del paese, ma in una zona super tranquilla. Il prezzo è davvero conveniente, solo 90.000 euro!

La casa ha tutto quello di cui avete bisogno: scuole, trasporti pubblici e servizi sono tutti a portata di mano.
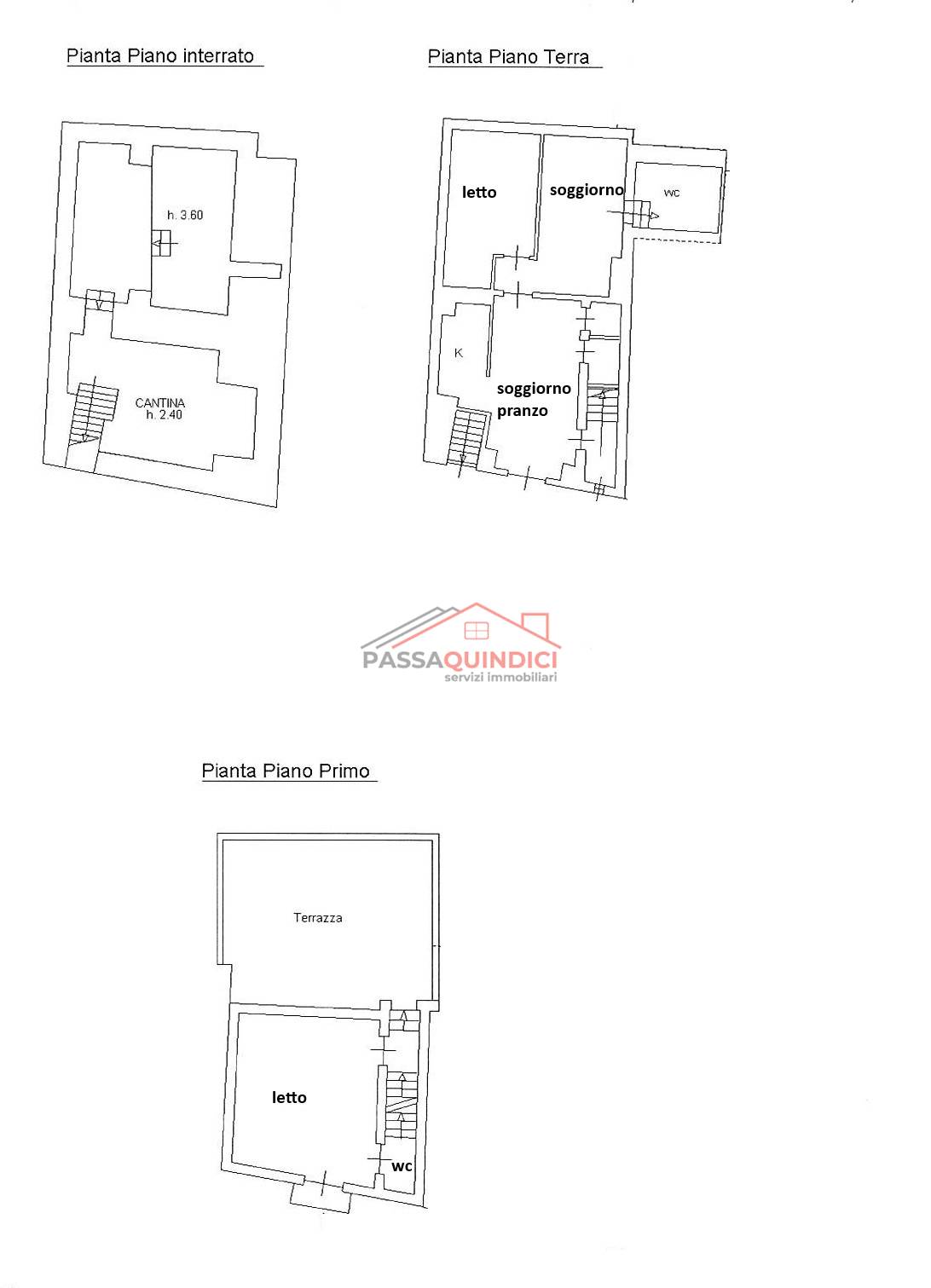
Cii sono due camere da letto e quattro posti letto in totale. Inoltre, ci sono due bagni, quindi niente più code la mattina!

La casa è stata recentemente ristrutturata, quindi potete essere sicuri che sia in ottime condizioni.
Inoltre dispone di due ampi terrazzi dove potrete trascorrere momenti di relax in compagnia della vostra famiglia o dei vostri amici.
Non lasciatevi scappare questa occasione, contattateci subito per organizzare una visita!
Caratteristiche principali
Codice:
V000812
Città:
Triggiano
Categoria:
3 locali
Locali:
3
Camere:
2
Bagni:
2
Mq:
90
Terrazzi:
2
mq Terrazzo:
60
Piano:
Terra
Anno:
1940
Anno ristrutturazione:
2018
Classe energetica:
G
Stato Immobile:
Ristrutturato
Grado:
Medio
Posizione:
Centro
Lati Liberi:
2
Giardino:
No
Arredi:
Non Arredato
Tipo Soggiorno:
Soggiorno
Tipo Cucina:
Abitabile
Riscaldamento:
No
Tipo Impianto:
No
Acqua Calda:
Autonoma
Raffrescamento:
Split
Infissi:
PVC Doppio Vetro
Serramenti:
Ottimo
Pavim. Giorno:
Gres Porcellanato
Pavim. Notte:
Gres Porcellanato
Pavim. Cucina:
Gres Porcellanato
Pavim. Bagno:
Gres Porcellanato
Accesso Disabili:
Nessuna Barriera
Accesso interno disabili:
Parziale
Accessori
Aria Condizionata
Ingresso Indipendente
Lavanderia
Passaggio Pedonale
Porta Blindata
Mappa
Via Fanfulla, 38 - Triggiano (BA)
Distanze
Posizione
Centro50 m
Mare1,5 km
Parco pubblico650 m
Istruzione
Scuola materna350 m
Scuola elementare450 m
Scuola media550 m
Scuola superiore750 m
Università8,5 km
Mezzi di trasporto
Aeroporto12 km
Fermata metro-bus-tram150 m
Porto8,5 km
Stazione dei treni250 m
Altri servizi
Banca500 m
Centro culturale350 m
Chiesa50 m
Farmacia250 m
Ospedale750 m
Supermercato500 m
Video
Planimetrie
Richiedi informazioni
Invia
Cookie preference