Casa singola in Vendita a Triggiano (BA)

In vendita
Casa singola
Triggiano
438.000 €
Descrizione
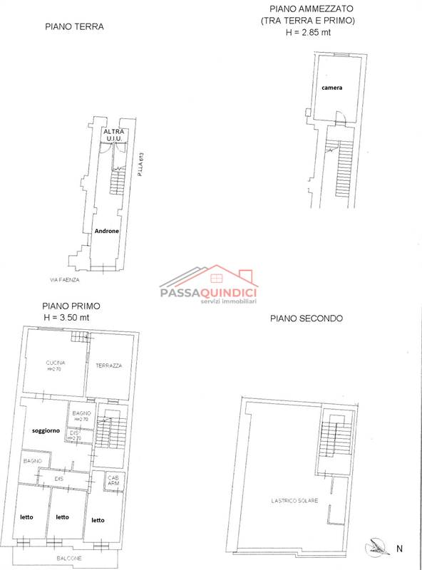
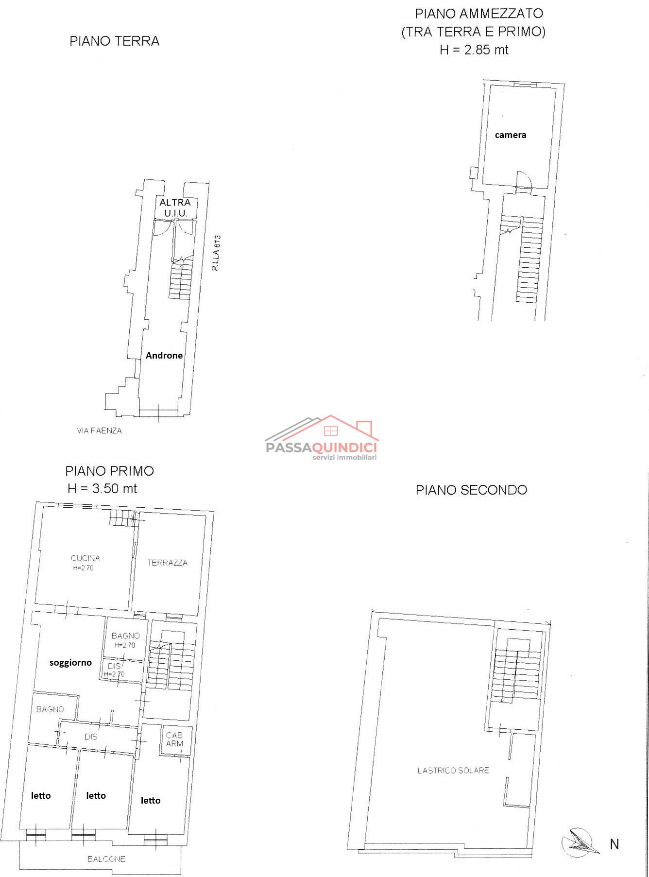
Se stai cercando una casa singola in vendita a Triggiano, questa potrebbe essere quella giusta per te! Situata in via Faenza, in una zona tranquilla e ottimamente collegata con Bari, questa casa ha tutto ciò di cui hai bisogno. Con 5 vani, 3 camere da letto con 6 posti letto, 3 bagni, avrai spazio più che sufficiente per te e la tua famiglia. La casa dispone di due terrazzi dove potrai trascorrere momenti de relax all'aperto con la tua famiglia e con i tuoi amici e di un ampia cantina al piano interrato. Tra le rifiniture, pavimentazione in gres porcellanato, impianto fotovoltaico con batteria d'accumulo, predisposizione impianto di condizionamento, è necessario esclusivamente l'installazione degli split interni, infisso a taglio termico ultima generazione, bagni con rifiniture in marmo. La casa è stata completamente ristrutturata nel 2023 con l'utilizzo di materiali di pregio e si trova in una zona dotata di tutti i servizi necessari. Il prezzo è di 438.000 EUR. Non lasciarti scappare questa opportunità!
Caratteristiche principali
Codice:
V000826
Città:
Triggiano
Categoria:
Casa singola
Locali:
5
Camere:
3
Bagni:
3
Mq:
380
Box:
1
Posti auto:
3
Balconi:
1
Terrazzi:
2
Piano:
Terra
Classe energetica:
C
Stato Immobile:
Ristrutturato
Grado:
Signorile
Posizione:
Centro
Lati Liberi:
2
Giardino:
No
Arredi:
Non Arredato
Tipo Soggiorno:
Soggiorno
Tipo Cucina:
Abitabile
Riscaldamento:
Autonomo
Tipo Riscaldam.:
Caldaia
Tipo Impianto:
Radiatori
Fonte Energetica:
Metano
Acqua Calda:
Autonoma
Raffrescamento:
No
Infissi:
PVC Triplo Vetro
Serramenti:
Buono
Persiana:
Persiana PVC
Pavim. Giorno:
Gres Porcellanato
Pavim. Notte:
Gres Porcellanato
Pavim. Cucina:
Gres Porcellanato
Pavim. Bagno:
Gres Porcellanato
Accesso Disabili:
No
Accesso interno disabili:
Pieno accesso
Isolamento:
Presente
Isolamento termico:
Cappotto esterno
Isolamento acustico:
Isolamento pareti
Destinato a residenti:
Si
Accessori
Antifurto
Camino
Canna Fumaria
Cancello Elettrico
Doppio Ingresso
Fibra Ottica
Impianto Fotovoltaico
Impianto Satellitare
Ingresso Indipendente
Pannelli Solari
Passaggio Pedonale
Porta Blindata
Ripostiglio
Tripli Vetri
Video Citofono
Video Sorveglianza
Mappa
VIA FAENZA , 95 - Triggiano (BA)
Distanze
Posizione
Centro200 m
Mare3 km
Parco pubblico200 m
Istruzione
Scuola materna1 km
Scuola elementare500 m
Scuola media500 m
Scuola superiore1 km
Università15 km
Mezzi di trasporto
Aeroporto25 km
Colonnina EV3 km
Fermata metro-bus-tram500 m
Porto20 km
Stazione di servizio2 km
Stazione dei treni500 m
Altri servizi
Banca500 m
Centro culturale1 km
Chiesa500 m
Farmacia1 km
Ospedale500 m
Supermercato200 m
Richiedi informazioni
Invia
Cookie preference